1. Accueil
  2. Architecture d'intérieur
  3. Travaux et extensions
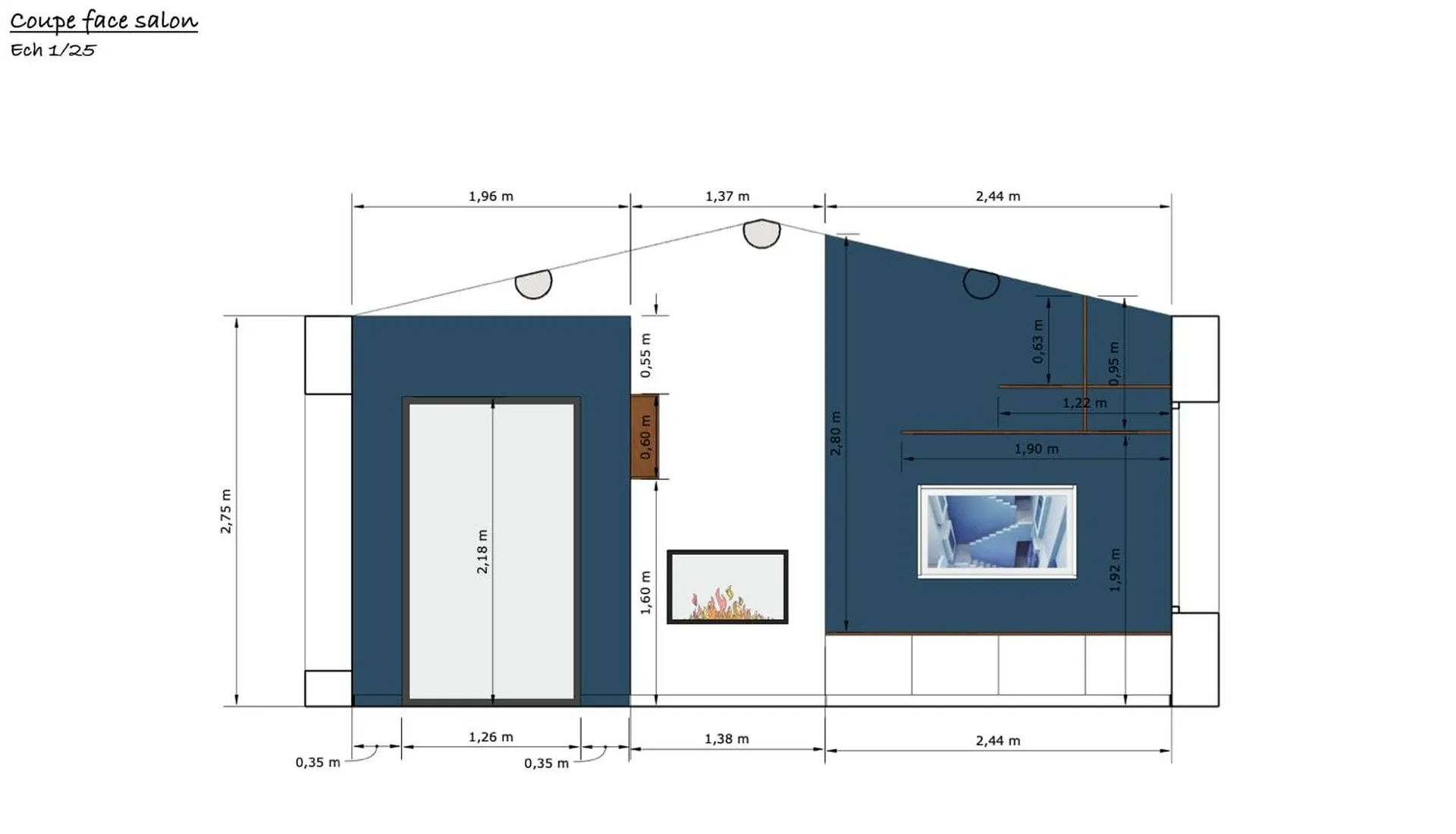
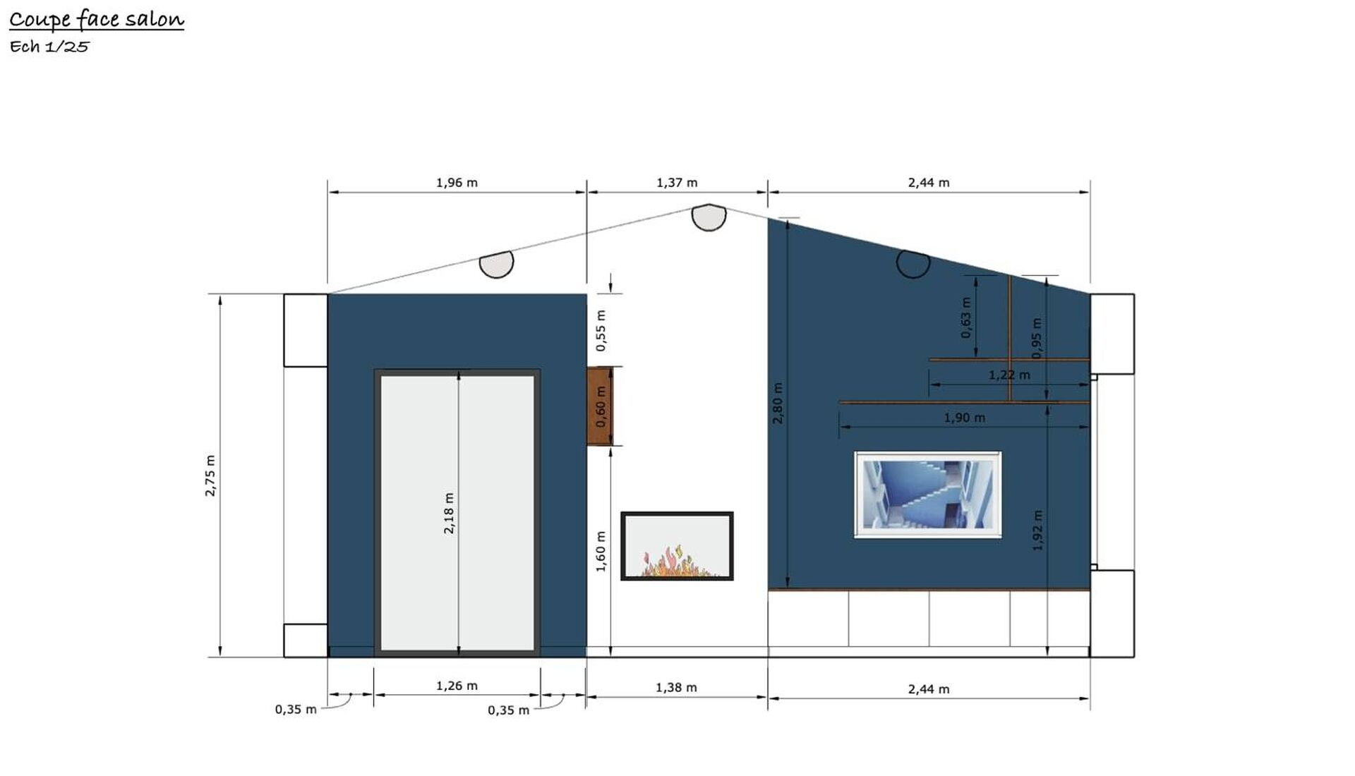
  4. Architecte d'intérieur : Relevé de l'existant, plan d'aménagement "Avant-projet" pour une maison à Aix-en-Provence avec propositions d'agencement avec coupes, plans, élévations et esquisses visuelles
Retour
Travaux et extensions

Architecte d'intérieur : Relevé de l'existant, plan d'aménagement "Avant-projet" pour une maison à Aix-en-Provence avec propositions d'agencement avec coupes, plans, élévations et esquisses visuelles

Partager :


Architecte d'intérieur : Relevé de l'existant, plan d'aménagement "Avant-projet" pour une maison à Aix-en-Provence avec propositions d'agencement avec coupes, plans, élévations et esquisses visuelles

 

  • Surface : 150 m2

  • Habitation : maison individuelle avec étage
  • Lieu :  Aix-en-Provence 13090
  • Projet : aménagement maison, salon, séjour, salle à manger
  • Accompagnement :  Mission Avant-projet en architecture d'intérieur


L'AGENCE MRC, reconnue pour son expertise en architecture d'intérieur à Aix-en-Provence, se distingue par sa capacité à transformer les espaces de vie grâce à des projets de rénovation et d'aménagement sur mesure. Spécialiste en agencement (architecte d'intérieur) , le cabinet a une expertise dans la conception d'avant-projet d'architecture d'intérieur, offrant une gamme complète de services allant de la réalisation de pièces graphiques détaillées, coupes, plans, élévations, et esquisses visuelles, jusqu'au suivi rigoureux des travaux à Aix-en-Provence, Marseille, et Cassis.

Grâce à une solide expérience en rénovation et en agencement grace au metier d'architecte d'intérieur, l'AGENCE MRC propose des solutions sur mesure et personnalisées pour maison, appartement, cuisine, salle de bain et divers espaces, assurant une approche singulieres qui garantit un design optimal et une optimisation des volumes & travaux.

Dans chaque projet conduit en qualité d'architecte d'intérieur à Aix-en-Provence, vise à moderniser et améliorer les espaces en mettant l'accent sur la lumière naturelle, l’harmonie des matériaux et l'efficacité énergétique, notamment à travers l'utilisation judicieuse de matériaux de qualité et de techniques. Ce souci du détail se traduit par des aménagements aussi bien esthétiques que pratique, créant des environnements contemporains et chaleureux. Par exemple, l'intégration de meubles de rangement conçus sur mesure, l'installation d'étagères murales et de niches décoratives en bois, ou encore l'adoption de solutions d'éclairage innovantes comme la télévision connectée "FRAME", contribuent à enrichir l'esthétique de l'espace tout en maximisant son utilité, comme dans le cadre de ce projet en avant-projet sur Aix-en-Provence.

Cette rénovation et d'aménagement à Aix-en-Provence conduit par un architecte d'intérieur de  AGENCE MRC  est réalisé après un relevé de l'existant, met également en avant une palette de couleurs apaisantes, avec des poutres et boiseries peintes en gris clair teinte « galet » pour une harmonie visuelle, tandis que l'utilisation de blanc mat pour le mobilier avec des touches de bois naturel insuffle une sensation de chaleur. Le choix de peindre certains murs en bleu ajoute une touche de dynamisme à l'espace, créant un contraste visuel attirant pour le regard et ajoutant une dimension supplémentaire à l'ensemble.

Cette rénovation par architecte d'intérieur à Aix-en-Provence s'accompagnent d’un remplacement de l’huisserie pour améliorer l'isolation thermique et acoustique éléments étudier dans les phases d'étude de conception (avant-projet). Permanent à l'architecte d'intérieur d'offrir des solutions d'un esthétique moderne grâce à l'aluminium foncé (coloris noir) couplant élégance et usage. L'intégration du chauffage et l'attention portée aux détails techniques et esthétiques témoignent de l'engagement de l'AGENCE MRC à créer des espaces de vie non seulement beaux mais aussi confortables et pratiques.

L'AGENCE MRC, grâce à une expertise en d'architecte d'intérieur à Aix-En-provence et Marseille, pour intervention sur rénovation et agencement, le cabinet réalise des espaces qui allient fonctionnalité, esthétique contemporaine et confort. Chaque projet est une illustration de nos capacités à intégrer harmonieusement design moderne, matériaux de qualité et innovations technologiques, offrant ainsi des solutions sur mesure qui répondent aux aspirations de notre clientèle dans des mission d'étude d'aménagement (Avant-projet) ou coordination travaux de réalisation.

Architecte d'intérieur : Avant-projet en architecture d'intérieur pour l'aménagement d'une maison à Aix-en-Provence, incluant transformation avec coupes, plans, élévations et esquisses visuelles
Nous écrire
Les champs indiqués par un astérisque (*) sont obligatoires
À découvrir
Etude pour conception d'appartement et travaux cuisine sur Aix-En-Provence 130100

Etude pour conception d'appartement et travaux cuisine sur Aix-En-Provence 13010

Projet : Conception d’Appartement de 90 m 2 type T4 avec transformation cuisine. Localité : Aix-En-Provence Mission : Etude d’avant projet pour la rénovation d’appartement et transformation d’une cuisine par un Architecte d'intérieur et décoration Durée travaux : / Budget travaux : / Etud...
Agrandir un salon d'une maison en déposant un mur porteur sur Aix-En-Provence avec des architectes d’intérieur

Agrandir le salon d'une maison en déposant un mur porteur sur Aix-En-Provence avec des architectes d’intérieur

Agence MRC votre entreprise architecte d'intérieur sur Aix En Provence, pour vos projets de rénovation, de travaux d'aménagement et d’agrandissement d'espace dans la conception et le suivi de la réalisation sur Puyricard, Celony ou Aix-En-Provence. Découvrez dans cet exemple, une consultation cons...
Relooking d'intérieur et coaching déco à Aix-En-Provence par architecte d'intérieur

Relooking d'intérieur et coaching déco à Aix-En-Provence par architecte d'intérieur

Relooking d'un appartement et coaching déco par architecte d'intérieur sur Aix-En-Provence.   Agence MRC, cabinet d'architecture. Réaménagement de la pièce en définissant 4 zones.Un espace entrée : Avec la création d'une séparation spatiale en claustra dessiné par l'équipe d'architecte d'inté...
Architecte d'intérieur pour studio à Aix-En-Provence : studio optimisé et élégant à Aix-en-Provence grâce à l'expertise d'un cabinet d'architecture intérieure

Architecte d'intérieur à Aix-En-Provence : studio optimisé et élégant à Aix-en-Provence grâce à l'expertise travaux d'un cabinet d'architecture

Architecte d'intérieur à Aix-En-Provence : studio optimisé et élégant à Aix-en-Provence grâce à l'expertise travaux d'un cabinet d'architecture intérieure à savoir, l'Agence MRC, spécialisé dans la rénovation et l'aménagement d'appartements sur Aix-en-Provence et Marseille. Nous vous présentons un...
Inscrivez-vous à la newsletter
Je souhaite recevoir les actualités, conseils et offres exclusives de AGENCE M.R.C, et j’accepte la Politique de confidentialité.