1. Accueil
  2. Architecture d'intérieur
  3. Travaux et extensions
  4. Architecte d'intérieur sur Marseille 12e arrondissement pour une rénovation et extension de maison ancienne et définition solution d'extension pour optimisation travaux
Retour
Travaux et extensions

Architecte d'intérieur sur Marseille 12e arrondissement pour une rénovation et extension de maison ancienne et définition solution d'extension pour optimisation travaux

Partager :
Architecte d'intérieur sur Marseille 12e arrondissement pour une rénovation et extension de maison ancienne et définition solution d'extension pour optimisation travaux

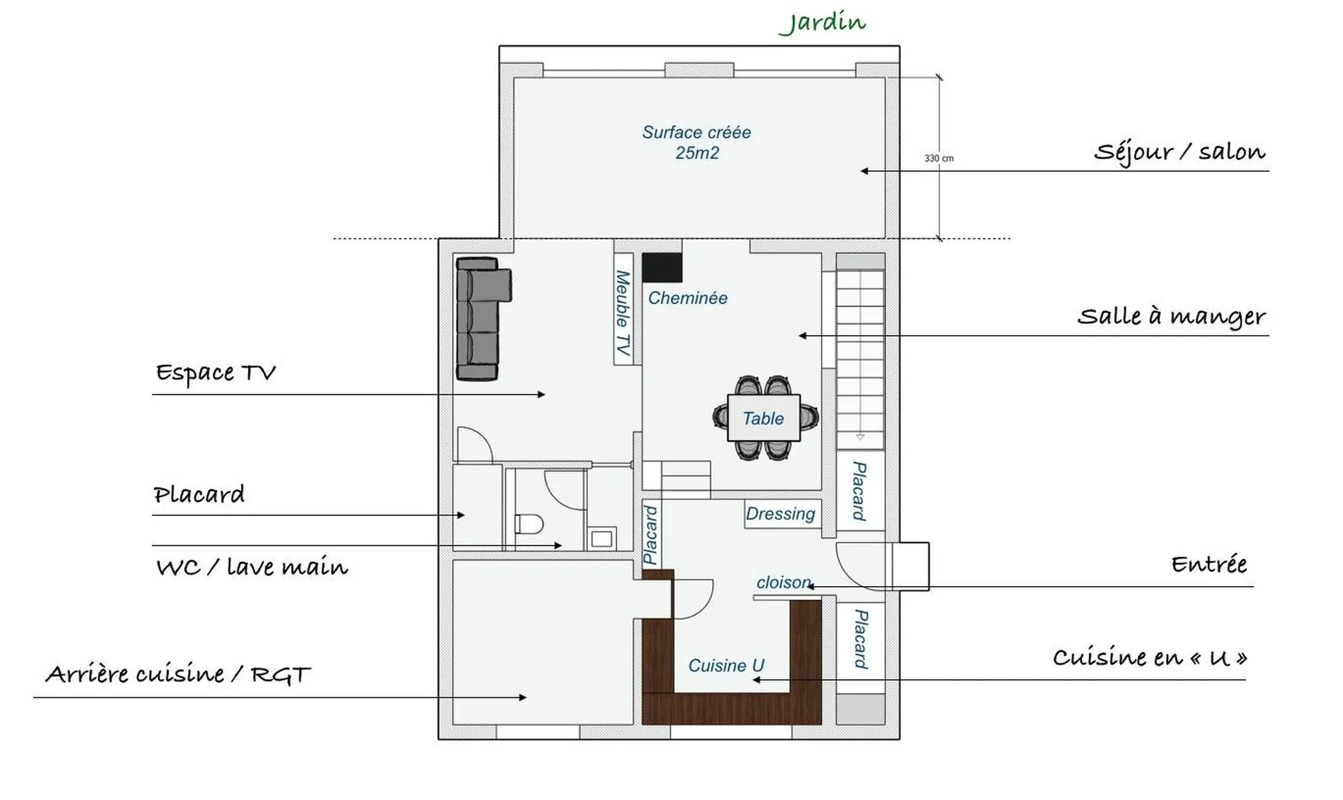
Pour une rénovation avec extension d'une maison à Marseille 13012, par AGENCE MRC avec une intervention en architecte d’intérieur afin d'optimiser les agencements en créant une nouvelle surface de 25 m² en cohérence avec la réhabilitation totale des volumes. L'ajout s'intègre harmonieusement à côté du nouveau séjour/salon par un extension implanté sur une partie du jardins et offrant une ouverture vers le jardin en renforçant le lien avec l'extérieur. L’agencement, optimisé par un architecte d’intérieur, prend soigneusement en compte le croisement des paramètres techniques, la lumière, et le réseau. Les études de conception permette d'inclure une variété de fonctionnalités allant de zones de rangement astucieusement disposées à une zone TV confortable. Une cuisine moderne en forme de L est positionné pour un meilleure usage.  Un joli projet d’architecte d’intérieur en rénovation et extension sur le 12e arrondissement de la cité phocéenne.

Nous pouvons intervenir en qualité d'architecte d'intérieur :

  • Évaluation de l'espace et conception préliminaire : Analyse détaillée de l'espace actuel avec élaboration de propositions de plans d'aménagement adaptés à vos exigences.
  • Élaboration des croquis et définition du projet : Travail collaboratif pour définir l'atmosphère souhaitée, choisir les matériaux, et créer des visualisations en 3D de votre futur espace.
  • Préparation du dossier pour appel d'offres : Composition d'un dossier technique exhaustif destiné à la consultation des entreprises.
  • Choix des prestataires et budgetisation des travaux : Aide à la sélection des entreprises compétentes et à l'ajustement financier du projet.
  • Supervision du chantier : Gestion et coordination des entreprises, suivi des commandes, et contrôle financier et comptable du chantier.
  • Inspection finale des travaux : Contrôle minutieux pour s'assurer de la conformité des travaux avec vos attentes lors de la livraison finale.

Extension de maison clé en main à marseille par architecte d'intérieur pour projets sur mesure en rénovation, aménagements modernes et optimisation d'espace


Un projet d’aménagement et de rénovation totale de maison ancienne avec extension visant à intégrer  :
  • Surface créée (25 m²) : intégration d’une extension de maison pour créer un nouvel zone de 25 m², situé à côté du séjour/salon et ouvert sur le jardin et la piscine.
  • Jardin avec piscine : intégré le long de la nouvelle surface créée avec une terrasse d’agrément.
  • Séjour / salon : Une grande pièce qui se trouve à côté de la salle à manger et surface créée pour profiter de la lumière directe, avec une fenêtre de toiture imaginé par architecte d'intérieur.
  • Salle à manger : positionnée entre le séjour/salon et l'entrée, avec un placard à proximité et implantée dans un espace de circulation.
  • Entrée : L'entrée principale de cette maison, avec accès direct à la salle à manger et au salon, avec une jolie astuce d’architecte d’intérieur visant à récupérer du volume sous escalier pour fabriquer un shoeshine et dressing d’entrée.
  • Cuisine en « L » : intégration d’une cuisine en L en bois et coloris noir mat, avec un comptoir et bar en forme de L.
  • Arrière-cuisine / RGT : Un rangement supplémentaire à côté de la cuisine, peut-être pour le rangement et comme garde-manger.
  • WC / Lave-mains : Des toilettes avec un petit lavabo, situées près de l'entrée et de l'espace TV pour un accès plus intime avec une double porte pour plus de discrétion.
  • salle TV : Un partie de pièce dédié au visionnage TV sur un écran géant permettant de donner une fonction à la zone, avec un canapé et un meuble TV indiqués.
  • Cheminée : Un élément central dans le séjour/salon, contribuant à la chaleur et à l'ambiance à la pièce et intégrant un astucieux jeu de niche pour cacher un pilier porteur, gardé suite aux ouvertures intérieures et en façade du mur avec IPN.

Le projet d’architecte d’intérieur reflète une utilisation efficace de surface disponible et un bon flux entre les pièces. L'ajout de l'extension ouvre cette jolie maison marseillaise des années 50 sur le jardin et augmente les pieces de vie.

L'aboutissement de cet aménagement reflète une conception d’architecte d’intérieur bien réfléchie qui recherche à maximiser à la fois la fonctionnalité et l’agrément. La nouvelle extension de cette habitation de Marseille. Fabriquer en harmonie avec les pièces existantes et définie par permis de construire. Nous avons rechercher à amplifier l'expérience de l'habitat tout en offrant une esthétique moderne. POur un espace de vie aussi moderne que optimisé par un architecte d’intérieur, enrichi par une cheminée centrale et une disposition fluide, promet une amélioration significative de qualité de vie des occupants, en symbiose avec leur environnement.

Si vous avez un projet de rénovation, aménagement de maison ancienne ou d’extension sur Marseille 12e arrondissement, contactez l’AGENCE MRC, architecte d’intérieur et paysagiste DPLG.
Architecte d'intérieur sur Marseille 12e arrondissement pour intégrer une extension à une maison ancienne avec rénovation totale des volumes
Nous écrire
Les champs indiqués par un astérisque (*) sont obligatoires
À découvrir
architecte d'intérieur marseille 13009 rénovation intérieur travaux conception et réalisationMazargues, Baumettes, Le Cabot,

architecte d'intérieur marseille 13009 rénovation intérieur travaux conception et réalisation

Architecte d’intérieur sur Marseille 13009 et dans sa région, l'Agence MRC est reconnue comme spécialiste en architecture d'intérieur et en travaux de rénovation, notamment pour la qualité de notre accompagnement qui place propriétaire et maitre d’ouvrage au centre de chaque projet avec une approc...
Architecture d'intérieur et aménagement sur Carnoux-en-Provence 13470 consultation pour travaux ou rénovation

Architecture d'intérieur et aménagement sur CASSIS consultation pour travaux ou rénovation

Chaque projet commence par une rencontre, avec l’Agence MRC cabinet d’architecture intérieur et extérieur, il est possible de nous rencontrer dans le cadre d’une visite afin de définir une proposition d’accompagnement pour votre projet...
EXTENSION ET TRAVAUX DE RENOVATION DE MAISON PAR ARCHITECTE D INTERIEUR PLANS DE CUQUES 13380

extension et travaux de renovation de maison par architecte d interieur plan de cuques 13380

EXTENSION ET TRAVAUX DE RENOVATION DE MAISON PAR ARCHITECTE D INTERIEUR PLANS DE CUQUES 13380 extension et travaux de renovation de maison par architecte d interieur plans de cuques 13380
Architecte Paysagiste Marseille 13008 pour aménagement jardin, terrasses bois et bassin moins de 10m2

Architecte Paysagiste Marseille 13008 pour aménagement jardin, terrasses bois et bassin moins de 10m2

Architecte Paysagiste à Marseille 13008 : Agence MRC spécialisée en aménagement jardin, terrasses bois & bassins
Inscrivez-vous à la newsletter
Je souhaite recevoir les actualités, conseils et offres exclusives de AGENCE M.R.C, et j’accepte la Politique de confidentialité.