1. Accueil
  2. Architecture d'intérieur
  3. Travaux et extensions
  4. Architecte DPLG et Architecte d’intérieur pour rénover et réhabiliter une maison ancienne sur Marseille 13008
Retour
Travaux et extensions

Architecte DPLG et Architecte d’intérieur pour rénover et réhabiliter une maison ancienne sur Marseille 13008

Partager :

Pour ce projet d’aménagement d’une maison ancienne et de son jardin sur Marseille, une réalisation en collaboration entre les cabinets d’architecture Agence MRC - Architecte d’intérieur et Paysagiste DPLG et le Cabinet Frédéric LECLERC ARCHITECTE DPLG. Nous avons composé un groupement de maîtrise d’œuvre conception et suivi travaux dont l’objectif est de répondre de façon globale en matière de conception d’espaces, intégrant conjointement l’architecture intérieur et l’aménagement extérieur pour une réhabilitation d’une maison sur Marseille 13008. Nous vous exposons un projet d’aménagement que nous avons conduit entre Perrier 13008 et les célèbres plages Borély.

Un aménagement d’architecte d’intérieur et d’architecte DPLG visant à garder le charme de l’ancien, l’âme de cette maison qui a 100 ans avec une décoration dans un style rétro chic. Réhabilitation de l’ensemble du bâtiment et de la terrasse dans une démarche de respect de l’existant et d’optimisation énergétique. Notre groupement d'architecture a également réalisé les déclarations de travaux nécessaires auprès des services de l’Urbanisme de Marseille.

Notre groupement d'architectures avec pour finalité de rendre la villa confortable et fonctionnelle. En mettant en œuvre des matériaux et des techniques de rénovation durable et pérenne. Une élégance et sobriété des matériaux et des équipements. Objectif après rénovation : location vide à l’année, occupation partielle par le propriétaire pour les congés et une fois à la retraite. Il s’agit donc d’un projet de rénovation imaginé pour une durabilité.


Rénovation et réhabilitation d'une maison ancienne sur Marseille avec équipe Architecte DPLG et Architecte d'intérieur


DANS TOUTE LA VILLA RENOVEE PAR CABINET D’ARCHITECTURE :

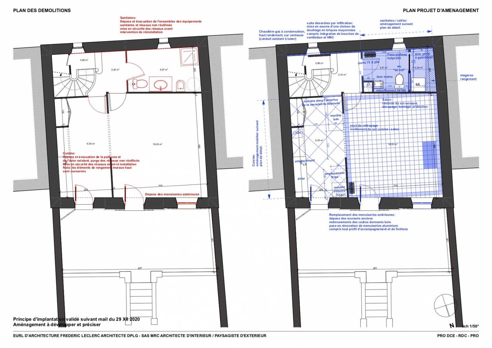
- Chauffage : remettre en état le réseau de chauffage central (radiateurs et tuyaux) et remplacer la chaudière (et la cuve) à fioul par une chaudière gaz à condensation (gaz de ville) ;
- Ventilation : système de ventilation naturelle pour les pièces et hygroréglable pour la salle de bains.
- Menuiseries : changement des 6 fenêtres, porte-fenêtre et fenêtrons par des menuiseries en double vitrage, en bois + restaurer les appuis de fenêtres cassés en pierre. Suivant déclaration de travaux "DP" d'architecte DPLG (mission architecture DPC / DPD)
- Électricité : remise aux normes avec augmentation du nombre de prises de courant.
- Peinture : réalisant générale des peintures plafond et sur les murs 

AMÉNAGEMENT CUISINE PAR ARCHITECTE D'INTÉRIEUR :

- Refaire intégralement la cuisine en gardant l’idée du linéaire pour tous les éléments fonctionnels (évier, cuisinière et four au gaz, hotte, lave-vaisselle, plan de travail, placards), avec ajoute d’espaces de rangement,
- Remplacement de la porte d’accès au palier par une verrière à mi hauteur
- Installation d'un revêtement de sol sur le granité existant, suivant les conseils d'architecte d'intérieur pour l' aménagement de cuisine.

SALON/ SALLE A MANGER :

- Conservation du sol en l’état et le raviver, après un nettoyage et traitement par saturateur.
- Les moulures architecturale d'origine du plafond sont conservées et restaurées en plâtre.
- Volets et gonds sont peints et remis en état. Bord de fenêtre intérieur
- Tomettes manquantes ou très abîmées à remplacer (pour le vestibule, la cage d’escalier et les paliers)
- Reprise du nez de marche sur le dégagement de l’escalier et peinture de la main courante en noir

SALLE DE BAIN :

- Transformation de l’architecture globale de pièce pour en faire une buanderie (avec lave-linge, étagères de rangement)
- installation d’un WC (avec un petit lavabo)
- Poser carrelage au sol après réhabilitation des supports.

PIÈCE « MYSTÈRE » :

- Transformation d’une pièce inconnue et inextensible pour en faire une salle de bain à l'architecture optimum.
- Intégration de  2 vasques avec une baignoire et des niches.
- Découpage de la pièce pour créer un WC avec des rangements.
- Réservation des tomettes au sol son gardé et serve à remplacer les tomettes manquantes et très abîmées

CHAMBRE PARENTALE :

- Conservation des tomettes Marseillaise en terre cuite au sol et réparation des tomettes manquantes ou très abîmées.
- Habillage de la face avant de la cheminée. conservation et rénovation dès placards

CHAMBRE ENFANT :

- Tomettes au sol gardez les et remplacer les tomettes manquantes ou très abîmées
- Création d’une tablette, éclairage et mise en peinture

CHAMBRE DANS COMBLES :

- Isolation intérieure au plafond avec plaque de plâtre et isolation suivant conseil de l’architecte DPLG de l’équipe.
- Dépose partielle de la cloison entre la chambre et la pièce voisine, pour agrandir la chambre et gagner en luminosité.
- Installation d’une climatisation réversible.
- Coffrage : créatine d’une une ouverture pour créer un débarras,
- Traitement des poutres contre les insectes.

EXTÉRIEUR TERRASSE :

- Balustrade, dépose en partie de l’ancienne balustrade et la remplace par une nouvelle en acier traité et peinte en grise.  Reprise des maçonneries et enduit pour les parties saines.
- Reprise du sol de la terrasse extérieur, réalisé d’un décapage.
- La cuve à fioul sous la terrasse est évacuée et neutralisée dans la sécurité suivant projet d'architecture.

JARDIN AMÉNAGÉ PAR ARCHITECTE PAYSAGISTE :

- Élagage et coupe d’arbre le long, suppression de certain sujet, clôture végétale taillé ou tailler
- Plantation de végétaux et les arbustes, plantes résistantes à la sécheresse et nécessitant peu d’eau,
- Nettoyage des bandes de terre.
- Nettoyage de la dalle extérieur du stationnement.
- Reprise de la peinture du mur d’entrée (côté intérieur et extérieur).
- Remplacement du portail de l’entrée de la maison avec traitement contre le sol au vue de la proximité dans une forme couleur et style architecturale similaire au portail d'origine.

Si vous entrevoyez un aménagement sur Marseille ou des travaux de rénovation pour une maison ancienne avec une piscine sur Marseille 13008 qui demande l’intervention d’un architecte DPLG et un cabinet d' architecte d’intérieur et d’extérieur ? Contactez notre équipe, via le formulaire de contact de notre site et organisons une rencontre pour débuter une collaboration sur votre projet.

Architecte DPLG et Architecte d’intérieur pour rénover et réhabiliter une maison ancienne sur Marseille 13008
Nous écrire
Les champs indiqués par un astérisque (*) sont obligatoires
À découvrir
architecte d'intérieur et décorateur intérieur sur Marseille 13011

architecte d'intérieur et décorateur intérieur sur Marseille 13012

De la conception à la réalisation pour tous vos projets de rénovation, travaux aménagement ou décoration. Propriétaire d'appartements, maisons, studio ou local commerciale dans la cité phocéens et sur Marseille 13012, vous pouvez compter sur...
Service conception ou suivis travaux avec un architecte d’intérieur sur Marseille 13010

Service conception ou suivis travaux avec un architecte d’intérieur sur Marseille 13010

cabinet d’architectes d’intérieur sur Marseille , Agence MRC qui propose des Services conception ou suivis travaux  Nous pouvons vous répondre à vos projets de rénovation pour un appartement ou une maison, nous vous proposons nos services dans le 10 ème arrondissement de la citée phocéenne comme,...
Architecte d’intérieur Marseille 13009 rénovation et travaux Mazargues

Architecte d’intérieur Marseille Mazargues 13009 pour rénovation et travaux

architecte d’intérieur et décorateur à Marseille 13009, accompagne les particuliers dans leurs projets de rénovation à Mazargues, Le Cabot et Le Redon. Nous concevons et coordonnons des aménagements complets d’appartements et de maisons, en intégrant plans techniques, représentations graphiques, visuels 3D et sélection des matériaux. Notre méthodologie structurée permet d’anticiper les contraintes, de sécuriser le budget et de garantir un résultat esthétique, fonctionnel et conforme aux règles urbaines locales. Avec un réseau d’artisans spécialisés et une expérience éprouvée sur plus de 30 projets sur Marseille 13009, nous proposons un accompagnement fiable, maîtrisé et durable.
Architecte d’intérieur Marseille 13008 pour rénovation et décoration la Pointe Rouge

Architecte d’intérieur Marseille sud Pointe-rouge 13008 pour rénovation et décoration

Le Cabinet MRC est un spécialiste de l'architecture intérieur et extérieur. La société est basée dans la ville de Marseille intervenant également sur la Pointe-rouge 13008. Le cabinet d'architecture offre une gamme de services, y compris la conception, la décoration et le suivi travaux.
Inscrivez-vous à la newsletter
Je souhaite recevoir les actualités, conseils et offres exclusives de AGENCE M.R.C, et j’accepte la Politique de confidentialité.