Studio d'architecture : Architecte d'intérieur offrant des solutions 3D avec plan et esquisse sur Aix-en-Provence
Le
studio d'architecture, AGENCE MRC,Intervenant en tant qu'architecte d'intérieur estimé à Aix-en-Provence et sa région dans l'art de transformer les habitations (maison, appartement, studio) avec des conceptions 3D exhaustives, pertinentes, pragmatiques et réalistes, ainsi que des plans détaillés réalisés par des professionnels expérimentés pour une rénovation réussie. L'équipe «
architecte d'intérieur à Aix-en-Provence » est dédiée à concevoir des aménagements qui reflètent la personnalité des propriétaires que le cabinet accompagne en utilisant des solutions 3D, des esquisses, des élévations et des coupes pour une visualisation précise, appuyée par des plans 2D méticuleusement élaborés pour les phases de réalisation des travaux.
L'approche du studio d'architecture repose sur un accompagnement sur mesure en mission d'architecte d'intérieur, établi des les premières ébauches sous la forme d'esquisse et de solutions 3D. Fonctionnant en étape et de validation en validation, conduisant à la réalisation de plan détaillé pour un agencement à la fois beau et technique. sur Aix-en-Provence, le studio est reconnu pour sa capacité à intégrer l'
architecture la
décoration et l'
agencement extérieur grâce à des plans précis et des rendus en solutions 3D qui préfigurent le résultat final et permettent aux exécutants de travailler dans des conditions éclairées et précises. Consultez nos projets pour apprécier nos réalisations.
L'accompagnement en
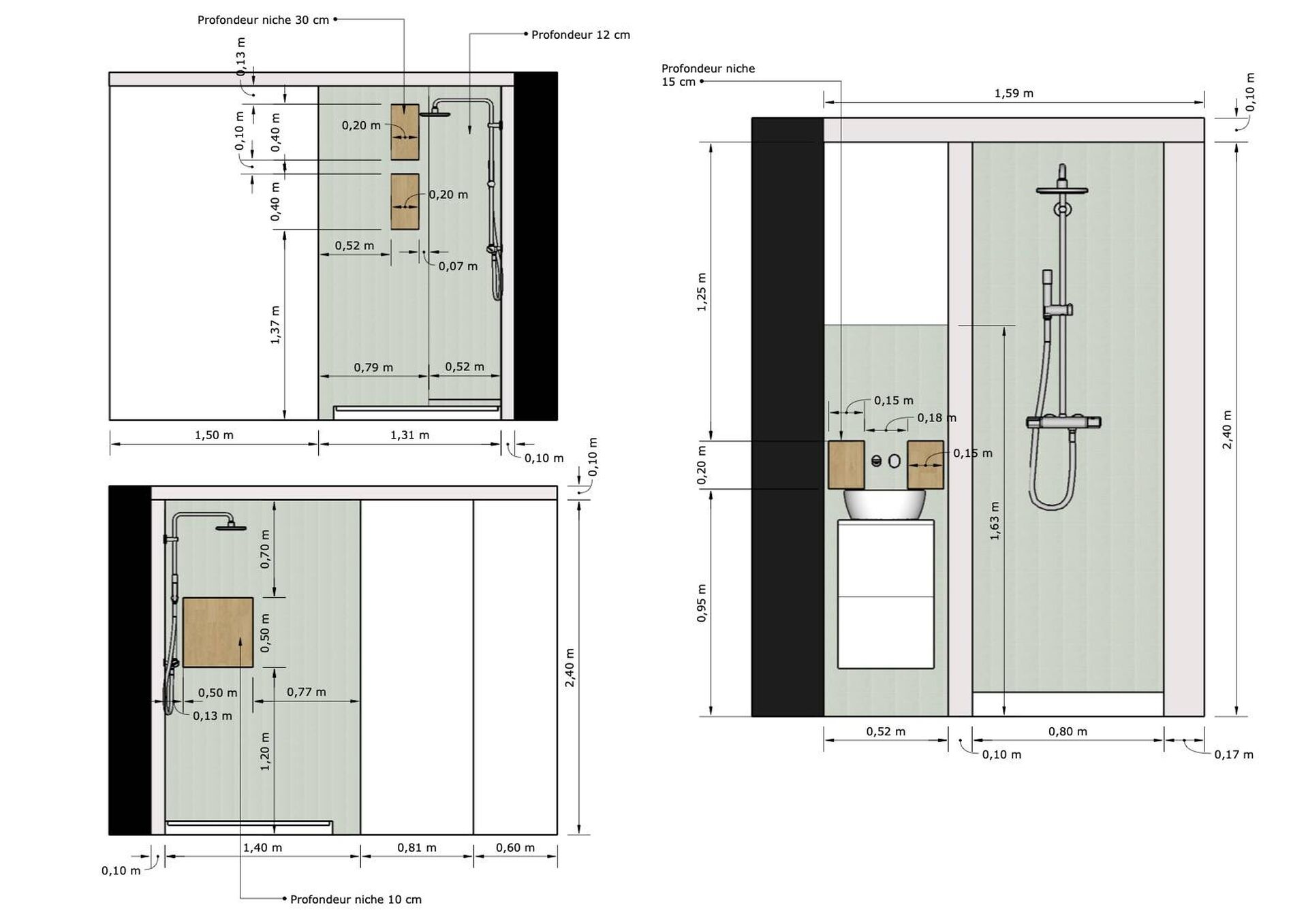
conception de plans et solutions 3D élaboré par le studio d'architecture à Aix-en-Provence est le fondement et processus créatif et un outil de travail pour l'architecte d'intérieur qui permet de structurer une rénovation d'appartement, un aménagement de maison et tout agencement de dressing, salle de bain ou cuisine. Elles permettent à la clientèle que nous accompagnons de s'immerger dans leur futur aménagement avant même le début des travaux. Ces plans sont le reflet d'un engagement à créer des aménagement qui allient esthétique et fonctionnalité. De plus, ces plans de conception architecturale établis en phase
ESQ /
APS /
APD /
DCE permettent aux artisans et entreprises de travaux d’élaborer les meilleurs devis et servent de document pour orienter et structurer la pose des travaux de rénovation.

Pour toute rénovation à Aix-en-Provence, faites confiance à notre studio d'architecture. L'AGENCE MRC propose un service de conception complète avec des solutions 3D et des plans qui transforment les idées en réalité. Nos
architectes d'intérieur à Aix-en-Provence sont des experts dans la création de documents de travail précis, des plans aux rendus 3D, qui servent de guide tout au long des travaux.
Notre studio d'architecture à Aix-en-Provence va au-delà de la conception, nous assurons également le suivi de chantier et la gestion administrative. Optez pour les solutions 3D et le savoir-faire en plans de MRC pour une rénovation qualitative suivi par architecte d'intérieur qui à construire un experience dans ce type de processus. Contactez le cabinet d'architecte d'intérieur AGENCE MRC sur Aix-en-Provence pour commencer votre projet de rénovation avec des plans et des solutions 3D de premier ordre.