Prix rénovation d'un appartement de 80m² à 90m² à Aix-en-Provence 13100 en PACA : estimation globale des travaux, finitions et aménagements 2025

Découvrez l'estimation budgétaire pour la rénovation complète d'un appartement de 80m² à 90m², incluant la démolition, la reconstruction et les finitions. Nous vous fournissons une fourchette de prix réaliste, basée sur la complexité du projet et le niveau de gamme des matériaux choisis. Planifiez votre rénovation en toute confiance avec une vision claire de l'investissement total nécessaire.

Contactez-nous
Les champs indiqués par un astérisque (*) sont obligatoires
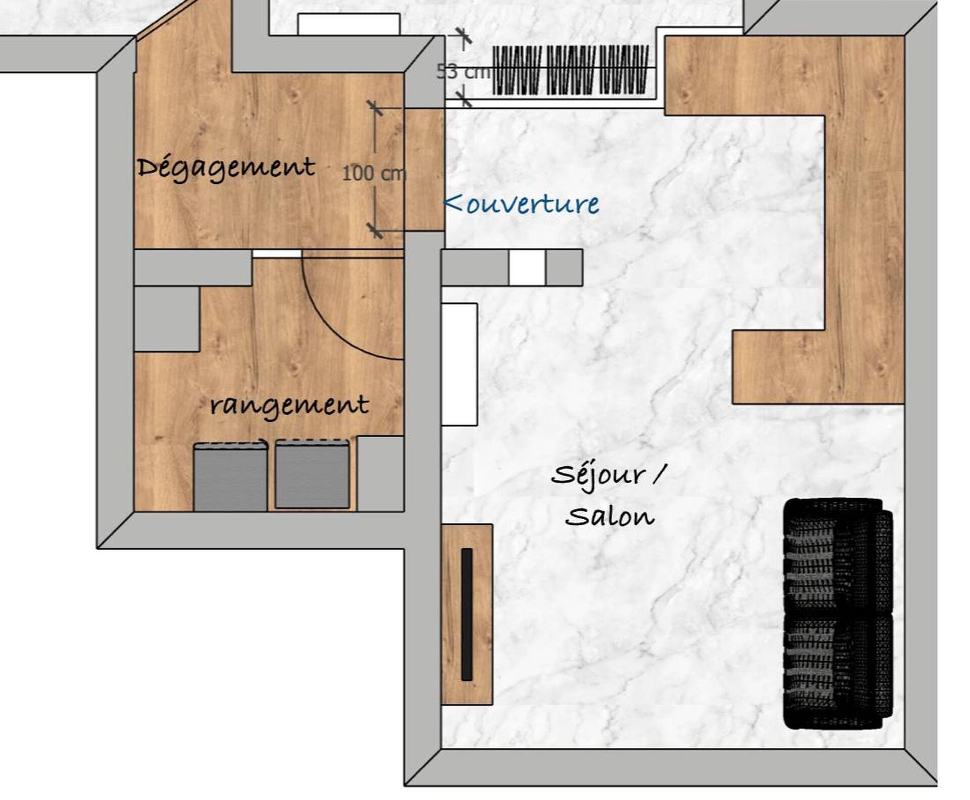
RÉNOVATION ET TRAVAUX DANS UN APPARTEMENT DE 85 M2 T4 SUR MARSEILLE PAR ARCHITECTE D'INTÉRIEUR 13006

RÉNOVATION ET TRAVAUX DANS UN APPARTEMENT DE 85 M2 T4 SUR MARSEILLE PAR ARCHITECTE D'INTÉRIEUR

Projet : Appartement de 90 m 2 type T4 Localité : Marseille Mission : Architecte d'intérieur et amublement et décoration, rénovation et travaux dans appartement avec réhabilitation cuisine, salon, salle à mangé, chambres, salle...
En savoir plus
Appartement ancien rénové avec changement cuisine sur Marseille Préfecture 13006 par Architecte d’intérieur

Appartement ancien rénové avec changement cuisine sur Marseille Préfecture 13006 par Architecte d’intérieur

AGENCE MRC, agence d’ architecte d’intérieur sur Marseille vous accompagne dans la rénovation et l’aménagement de vos appartements sur Marseille, notamment dans le 6ème arrondissement sur Lodi, Notre Dame du Mont, Vauban ou Castellane. Voici un exemple de projet ou notre cabinet d’architecte d'int...
En savoir plus
Conseil d’architecte d’intérieur sur Marseille pour modifier un appartement pour circulation de lumière et rénovation cuisine et salle de bain

consultation conseil d'architecture d'intérieur pour donner une nouvelle vie à un appartement ancien à Marseille

Agence MRC, votre architecte d'intérieur à Marseille, vous propose ses services de rénovation et de conseil voici un exemple de consultation pour la modification d'un bel appartement typique de la ville, situé à proximité du Palais Longchamp et du quartier des Cinq-Avenues. Cet appartement ancien ...
En savoir plus

Nos prestations sur le secteur de Aix-en-Provence 13100 en PACA

Conseil d’un professionnel architecte d’intérieur pour aménagement et modification de plan appartement VEFA dans les Bouches-du-Rhône

Conseil d’un professionnel architecte d’intérieur pour aménagement et modification de plan appartement VEFA dans les Bouches-du-Rhône

Un architecte d'intérieur vous accompagne et vous conseille lors de l'achat sur plan d'un bien neuf, appartement ou maison dans le cadre d'un programme immobilier construction en VEFA sur Aix-en-Provence, Marseille, Gémenos, Aubagne, la Ciotat ou Cassis (Bouches-du-Rhône).   Exemple de projet de...
En savoir plus
Rénovation d'une appartement de 80 m2 T3 sur Marseille par architecte d'intérieur 13011

Rénovation d'un appartement de 80 m2 T3 sur Marseille par architecte d'intérieur

Projet : Appartement de 80 m 2 type T3 Localité : Marseille  Mission : Architecte d'intérieur et décoration, rénovation totale de l'appartement avec transformation de la cuisine, d'une pièce aveugle et du salon en grand espace de vie style...
En savoir plus

Notre zone d'activité pour ce service Prix rénovation d'un appartement de 80m² à 90m² à Aix-en-Provence 13100 en PACA : estimation globale des travaux, finitions et aménagements 2025

agence mrc studio appartement rénovation location air bnb saisonnière saisonnier cassis aix en provence décoration

Conseil et aménagement d'un studio ou appartement par un architecte d'intérieur pour location Air BnB à Cassis

Conseil et aménagement d'un studio ou appartement par un architecte d'intérieur pour location Air BnB à CassisL'Agence MRC, vous accompagne et vous apporte le conseil et service sur mesure pour l'aménagement d'un studio par un architecte...
En savoir plus

Vous recherchez un architecte d’intérieur à Aix-en-Provence 13100 en PACA pour rénover un appartement, transformer une maison ou repenser vos volumes ?


L’AGENCE M.R.C, spécialisé dans les quartiers du 7ᵉ, 8ᵉ, 9ᵉ et 12ᵉ arrondissement de Marseille, vous accompagne dans vos projets de rénovation, extension et décoration intérieure, que ce soit pour un bien de caractère, une maison familiale ou un appartement avec vue.

Nous concevons des intérieurs sur mesure en harmonie avec votre mode de vie : style contemporain, moderne, méditerranéen, esprit maison de ville ou minimalisme chic. Notre équipe vous guide dans le choix des matériaux, l’optimisation des espaces, la création de mobilier sur mesure et l’embellissement global de votre habitat.

Nous intervenons également en aménagement extérieur sur Aix-en-Provence 13100 en PACA : jardins, terrasses, patios, piscines et espaces de détente, parfaitement adaptés à la topographie et à la lumière des quartiers marseillais.


Pour sublimer votre espace, contactez notre agence et obtenez un devis personnalisé : Prix rénovation d'un appartement de 80m² à 90m² à Aix-en-Provence 13100 en PACA : estimation globale des travaux, finitions et aménagements 2025.

Inscrivez-vous à la newsletter
Je souhaite recevoir les actualités, conseils et offres exclusives de AGENCE M.R.C, et j’accepte la Politique de confidentialité.