Rénovation complète et étude avec visuel d’architecte d’intérieur à Cabriès. Vous voulez
transformer et moderniser votre intérieur, vous ne savez pas comment, ni n'arrivez à vous
projeter ?
Nos équipes sont présentes pour vous y aider. Les représentations réalistes sont très appréciées pour vous représenter votre futur chez vous, après votre rénovation d'intérieur avec le
conseil d'architecte d'intérieur des Bouches-du-Rhône. Fort de leurs compétences, nos professionnels vous présentent des visuels de votre appartement ou de votre maison projeté, après vos travaux.
Ces
visuels d'architecte d'intérieur permettent d'avoir une vue d'ensemble du projet, autant dans l'étude que dans votre rénovation complète, pour faire les bons choix et prendre les meilleures décisions pour l'agencement et l'aménagement de votre appartement ou de votre maison.
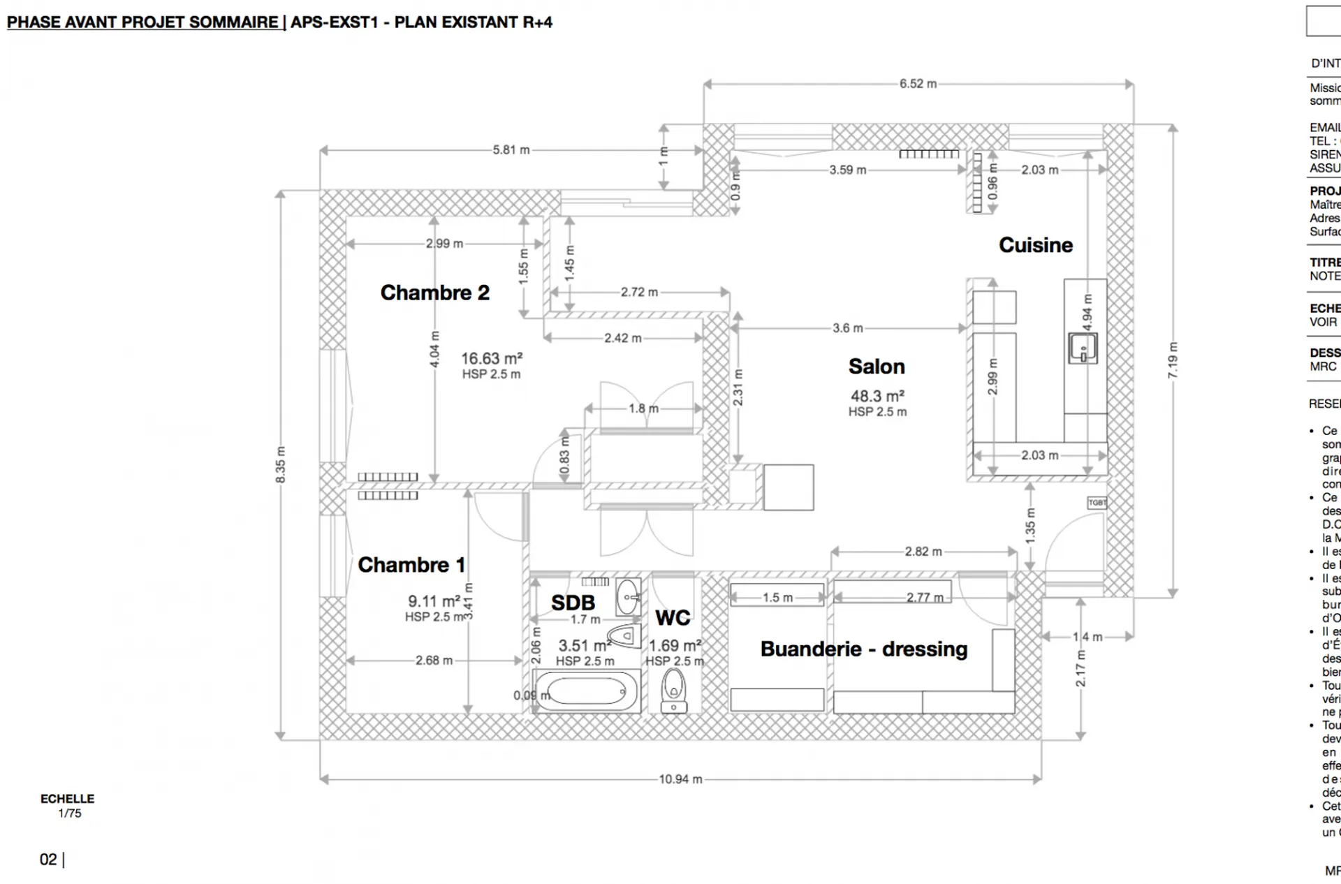
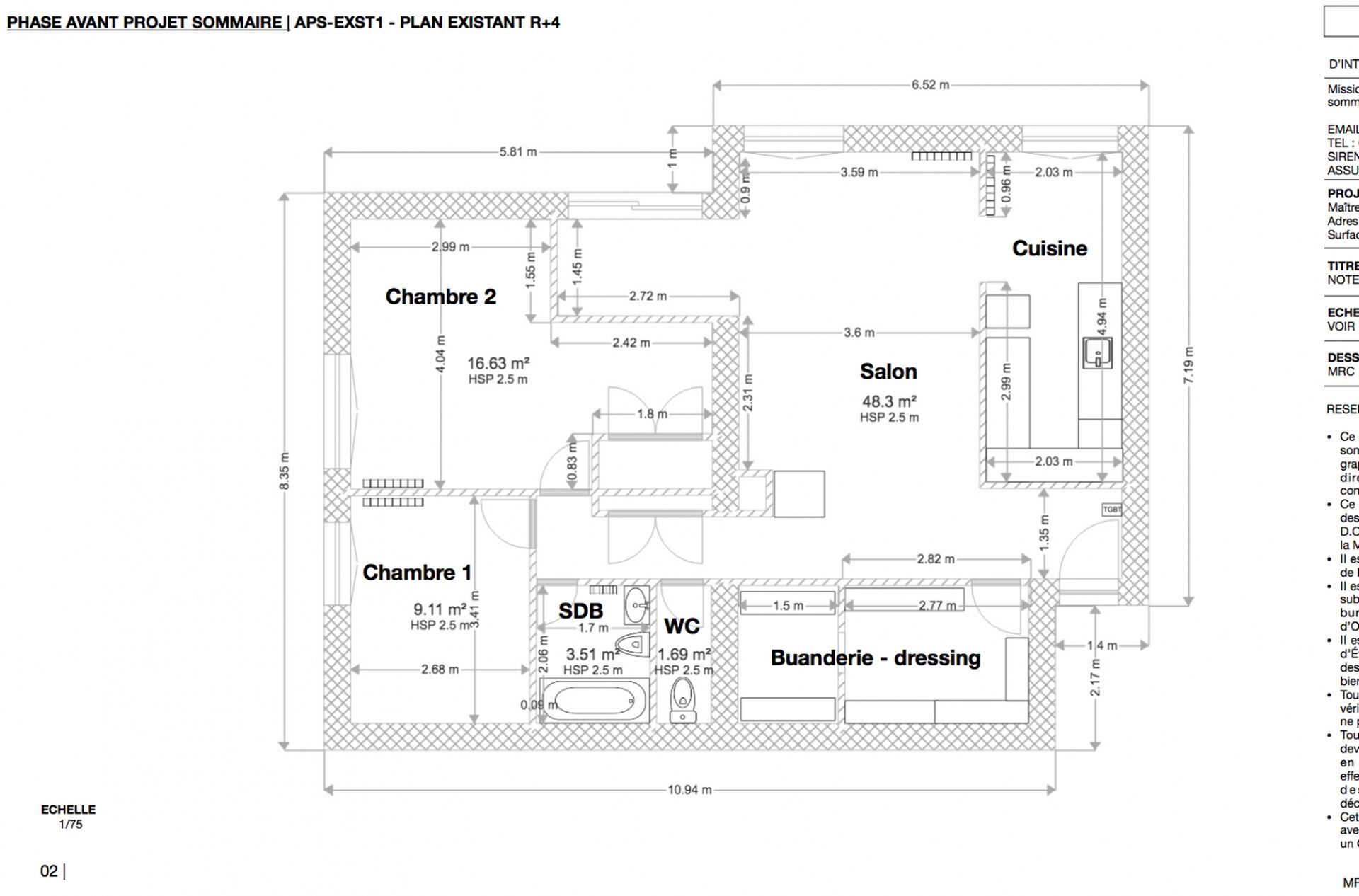
Nous pouvons réaliser une étude d’Avant Projet Sommaire qui sera la base de votre projet, cela pourra vous permettre à l’aide de
plans, de visuel 3D réaliste et d'un descriptif des travaux de vous projeter et d’apprécier votre future rénovation intérieure à Cabriès, Marseille ou dans les Bouches-du-Rhône.
Une fois l’étude mise en forme, nous la présentons à une entreprise de notre réseau pour un devis, libre à vous de nous confier le suivi de la réalisation de votre projet, ou bien de travailler directement avec l’entreprise que nous vous présentons ou celle de votre choix.
C’est l’assurance d’avoir un conseil de qualité et de pouvoir décider des meilleurs choix pour votre future rénovation d’appartement ou de maison, aux côtés d’un cabinet d’architectes d’intérieur.
Contactez nous pour en savoir plus sur nos
missions d'étude de conception ou convenir d’un rendez-vous.
