Nos archives

Projet d’escalier intérieur : création trémie et renfort métallique IPE/HEA dans un appartement à Marseille

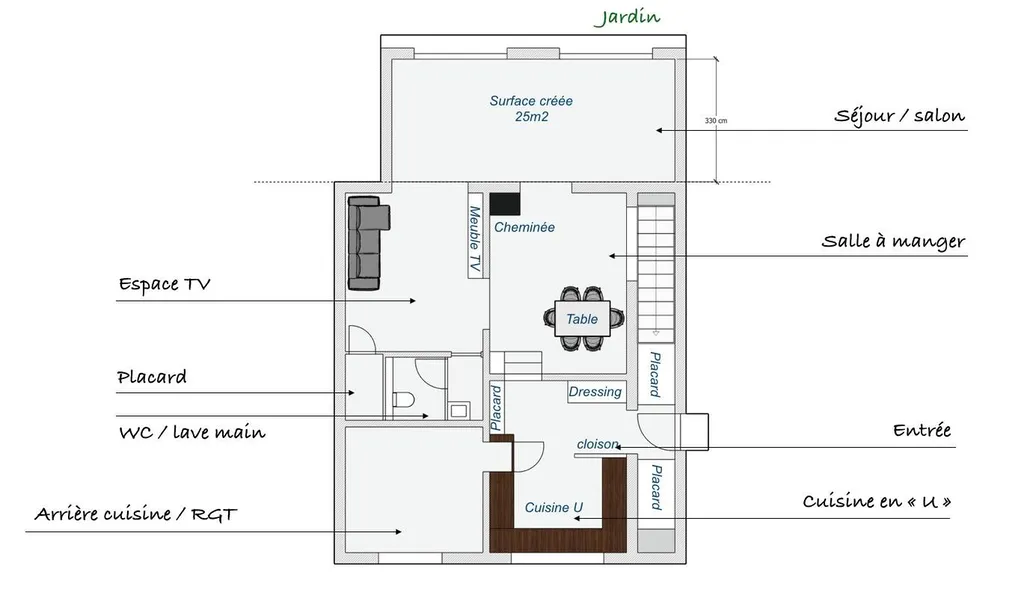
Relier deux appartements dans le 7ᵉ arrondissement de Marseille avec création de duplex avec escalier intérieur

Création duplex Marseille 7ᵉ : ouverture plancher, trémie et escalier intérieur – Architecte d’intérieur Endoume, Pharo, Catalans. L’AGENCE MRC réalise vos projets de création de duplex à Marseille 13007 : ouverture de plancher, trémie, escalier sur mesure et aménagement intérieur. Architecte d’intérieur sur Endoume, Pharo, Catalans, Saint-Victor et Bompard.
En savoir plus
Verrière intérieure sur mesure dans un duplex à Aix-en-Provence : mezzanine sécurisée et chambre mansardée lumineuse

Architecte d'intérieur pour verrière intérieure à Aix-en-Provence : lumière naturelle et sécurité dans un aménagement sur mesure

Ce projet à Aix-en-Provence met en lumière la création d’une verrière intérieure sur mesure conçue par un architecte d’intérieur. La réalisation valorise la lumière naturelle, sécurise une mezzanine et ouvre une chambre mansardée grâce à des verrières en verre feuilleté montées sur parcloses noires. L’approche permet de sécuriser une mezzanine avec verrière tout en conservant un design moderne et épuré. Elle répond aussi à la problématique : comment ouvrir une pièce sombre avec une verrière intérieure ? Les matériaux, les angles, les volumes et la lumière ont été pensés dans une logique d’aménagement sur mesure. L’intégration est fluide, cohérente avec l’esthétique industrielle contemporaine. Les verrières assurent la continuité visuelle sans cloisonner les espaces. La lumière traverse les niveaux pour un rendu à la fois graphique et chaleureux. Ce projet illustre l’importance de faire appel à un architecte d’intérieur à Aix pour une verrière réussie. Conception, sécurisation, suivi de chantier : tout est pensé pour une réalisation architecturale de qualité.
En savoir plus
Rénovation énergétique d’un bien ancien – Architecte d’intérieur pour travaux de réhabilitation avant aprés

Rénovation énergétique d’un bien ancien - Architecte d’intérieur pour travaux de réhabilitation

Architecte d’intérieur à Marseille, nous accompagnons vos travaux de rénovation énergétique en appartement ou maison ancienne. Notre cabinet d’architecture intérieure conçoit des projets sur mesure mêlant performance énergétique, design, et fonctionnalité. Isolation thermique, réagencement des volumes, remplacement des menuiseries, chauffage économique : chaque détail est pensé pour valoriser votre bien. Nous intervenons sur Marseille, Aix-en-Provence, Allauch, Cassis, Gémenos et dans toute la Provence. Spécialistes de la réhabilitation de biens anciens, nous assurons également la coordination des travaux, le dépôt de déclaration préalable, et le suivi de chantier avec des artisans qualifiés. Qu’il s’agisse de votre résidence principale ou d’un investissement locatif, nous proposons une approche globale intégrant esthétique, efficacité énergétique et valorisation immobilière. Vous recherchez un architecte d’intérieur pour une rénovation complète et performante ? Contactez l’AGENCE MRC pour un projet clé en main.
En savoir plus
Architecte d’intérieur pour optimiser un logement neuf sur plan : cuisine, salle de bain et aménagements sur mesure

Architecte d’intérieur pour optimiser un logement neuf sur plan : cuisine, salle de bain et aménagements sur mesure

Acheter un logement neuf sur plan ou en VEFA est une opportunité unique, mais les plans promoteurs sont souvent standardisés et peu adaptés à votre mode de vie. Faire appel à un architecte d’intérieur spécialisé en logement neuf vous permet de repenser les espaces avant même la livraison. Nous intervenons pour optimiser chaque mètre carré : ajustement de cloisons, création de rangements, circulation fluide, et conception sur mesure de la cuisine et de la salle de bain. Ces pièces techniques sont souvent mal pensées dans les programmes neufs : cuisine sous-dimensionnée, salle de bain mal placée ou peu fonctionnelle. Notre équipe d’architectes d’intérieur à Marseille vous accompagne en local ou à distance : de nombreux propriétaires vivant en dehors de Marseille (voire à l’étranger) nous font déjà confiance grâce à nos outils de suivi à distance. Transformez votre plan VEFA en un intérieur personnalisé, fonctionnel et harmonieux. Cuisine, salle de bain, mobilier sur mesure : confiez-nous votre projet pour un résultat à votre image.
En savoir plus
Architecte d’intérieur pour aménagement de cuisine sur plan dans un appartement neuf ou VEFA

Architecte d’intérieur pour aménagement de cuisine sur plan dans un appartement neuf ou VEFA

Dans un appartement neuf ou VEFA, la cuisine est souvent livrée vide, peu fonctionnelle ou mal implantée. Pour créer une cuisine sur mesure adaptée à vos usages, faire appel à un architecte d’intérieur spécialisé dans les logements neufs est essentiel. Nous intervenons dès la lecture de votre plan VEFA pour repenser l’agencement, optimiser les volumes, intégrer les arrivées techniques, et concevoir une cuisine ergonomique, esthétique et bien pensée. Que vous souhaitiez une cuisine ouverte, semi-ouverte ou fermée, nous vous proposons des solutions personnalisées avec mobilier sur mesure, choix des matériaux, et gestion des éclairages. Basés à Marseille, nous accompagnons aussi des clients à distance, partout en France ou à l’étranger, grâce à nos outils de suivi en ligne. Faites de votre cuisine un véritable espace de vie, parfaitement intégré à votre appartement neuf.
En savoir plus
Cabinet d’architecture à Auriol pour étude de faisabilité, accompagnement administratif et consultation des entreprises

Cabinet d’architecture à Auriol pour étude de faisabilité, accompagnement administratif et consultation des entreprises

Cabinet d’architecture à Auriol pour étude de faisabilité, accompagnement administratif et consultation des entreprises Vous recherchez un cabinet d’architecture à Auriol (13390) pour un projet de rénovation, de redistribution intérieure ou de reprise en sous-œuvre ? AGENCE MRC, architecte d'inté...
En savoir plus
Aménagement avec architecte d'intérieur et réhabilitation d’une maison de ville sur deux étages dans un immeuble ancien de caractère à Trets

Aménagement avec architecte d'intérieur et réhabilitation d’une maison de ville sur deux étages dans un immeuble ancien de caractère à Trets

Aménagement avec architecte d'intérieur et réhabilitation d’une maison de ville sur deux étages dans un immeuble ancien de caractère à Trets Quelles sont les étapes clés des travaux réalisés avec un architecte d'intérieur sur Trets pour une rénovation (aménagement intérieur, isolation, changement...
En savoir plus
Architecture d’intérieur – Aménagement d’une cuisine ouverte avec arrière-cuisine à Bouc-Bel-Air, cloison à galandage, éclairage encastré et carrelage haute résistance pour un usage optimisé

Architecture d’intérieur – Aménagement d’une cuisine ouverte avec arrière-cuisine à Bouc-Bel-Air, cloison à galandage, éclairage encastré et carrelage haute résistance pour un usage optimisé

Architecture d’intérieur – Aménagement d’une cuisine ouverte avec arrière-cuisine à Bouc-Bel-Air, cloison à galandage, éclairage encastré et carrelage haute résistance pour un usage optimisé Rénover une cuisine implique une approche technique et fonctionnelle, visant à optimiser les flux de circu...
En savoir plus
Prix et Guide de Rénovation : Combien coûte la rénovation d'une maison avec un architecte d'intérieur à Marseille et Aix-en-Provence

Combien de temps faut-il pour rénover une maison avec un architecte ?

Prix et Guide de Rénovation : Combien coûte la rénovation d'une maison avec un architecte d'intérieur à Marseille et Aix-en-Provence
En savoir plus
Comment un architecte d'intérieur peut-il optimiser l'espace et maximiser le potentiel d'une petite maison grâce à des solutions astucieuses et personnalisées ?

Comment un architecte d'intérieur peut-il optimiser l'espace et maximiser le potentiel d'une petite maison grâce à des solutions astucieuses et personnalisées ?

Comment un architecte d'intérieur peut-il optimiser l'espace et maximiser le potentiel d'une petite maison grâce à des solutions astucieuses et personnalisées en travaux de rénovation ? Optimiser l'espace dans une petite maison, la réponse est oui ! Un architecte d'intérieur peut maximiser chaqu...
En savoir plus
Aménagement de salle de bain par architecte d'intérieur à Trets, douche extra-plate, niches de rangement et faux plafond avec travaux de second œuvre

Aménagement de salle de bain par architecte d'intérieur à Trets, douche extra-plate, niches de rangement et faux plafond avec travaux de second œuvre

Aménagement de salle de bain à Trets avec architecte d'intérieur : douche extra-plate, niches de rangement, faux plafond et travaux de second œuvre pour un espace moderne et fonctionnel
En savoir plus
aménagement maison - architecte rénovation la ciotat cabinet d'architecture d'intérieur

Pourquoi faire appel à un architecte d'intérieur à La Ciotat (13600) ? Conseils et critères pour un projet de rénovation et d'aménagement qui reflète votre style

Pour sélectionner l'architecte d'intérieur idéal à La Ciotat (13600), il est crucial de connaître les astuces et conseils pour réussir votre projet de rénovation et d'aménagement sur mesure. Découvrez les clés pour choisir un architecte d'intérieur à La Ciotat (13600) et tout ce qu'il faut savoir pour un aménagement personnalisé et une rénovation de maison réussie. Trouver le bon professionnel est essentiel pour transformer et décorer votre intérieur. Apprenez pourquoi faire appel à un architecte d'intérieur à La Ciotat (13600) et explorez les critères pour un projet qui reflète votre style. Réussissez votre rénovation de maison avec un architecte d'intérieur expérimenté pour un aménagement optimal.
En savoir plus
Services d'aménagement et rénovation sur mesure à Vitrolles avec un architecte d'intérieur AGENCE MRC

Services d'aménagement et rénovation sur mesure à Vitrolles avec un architecte d'intérieur

Vous cherchez à transformer votre maison avec l'aide d'un architecte d'intérieur professionnel à Vitrolles 13127 ? Nos services d'architecte d'intérieur pour travaux d'aménagement à Vitrolles sont reconnus pour offrir des solutions créatives et adaptées à chaque projet. Nous nous spécialisons dans l'aménagement maison à Vitrolles, en fournissant des conseils pour l'aménagement intérieur d'une maison qui répondent à vos besoins et à votre style de vie. Nos experts en architecte intérieur maison travaillent avec vous pour réaliser des travaux d'aménagement intérieur qui transforment votre espace en un lieu fonctionnel et esthétique. Que vous souhaitiez moderniser votre cuisine, réaménager votre salon ou optimiser l'espace de votre salle de bain, nous avons les compétences nécessaires pour concrétiser votre vision. Réaliser des travaux d'aménagement intérieur avec un architecte à Vitrolles garantit un résultat harmonieux et professionnel, reflétant votre personnalité et vos goûts. Faites confiance à notre expertise en aménagement intérieur et laissez-nous transformer votre maison à Vitrolles en un espace qui vous ressemble. Agence MRC est un cabinet d'architecture d'intérieur et d'aménagement extérieur (pour création de piscine, jardin, terrasses) qui propose des services d'aménagement et de rénovation sur mesure à Vitrolles. Nous offrons un accompagnement dès la phase de conception avec une étude d'aménagement intégrant la réalisation des plans, ainsi que la consultation des artisans de notre réseau, avec assurance décennale et une solide expérience. Notre cabinet d'architecture assure également le suivi et la coordination du chantier.
En savoir plus
Quel est le coût moyen d'un plan d'architecte d'intérieur professionnel en 2024 ?

Quel est le prix d'un plan d'architecte d'intérieur ?

Le coût d'un plan d'architecte d'intérieur varie généralement entre 50 € et 150 € par mètre carré, selon la complexité et la localisation du projet. À Marseille et en Provence, les tarifs peuvent fluctuer en fonction des spécificités du projet et des besoins personnalisés des clients.
En savoir plus
Obtenez des devis précis et réussissez vos travaux d'aménagement avec un architecte d'intérieur à Aix-En-Provence

consulter des entrepreneurs et artisans pour un chantier et obtenir un des devis juste et négocier pour travaux d'aménagement avec architecte d'intérieur Aix-En-Provence

Pour vos travaux de rénovation à Aix-En-Provence, une consultation d'entreprise est essentielle pour obtenir des devis travaux précis et assurer une gestion optimale du chantier. L'Agence MRC, architecte d'intérieur à Aix-En-Provence, excelle en conception et suivi de chantier, en intégrant la consultation d'entrepreneurs et artisans. L'architecte d'intérieur conçoit et aménage les espaces en tenant compte des besoins du propriétaire et des contraintes techniques et budgétaires. Nos missions incluent la création de plans d'aménagement, la sélection de matériaux et la coordination des travaux. Une consultation d'entreprise préliminaire permet d'établir des devis détaillés et de planifier efficacement le chantier, assurant ainsi une réhabilitation d'intérieur réussie. L'Agence MRC dispose d'un réseau d'artisans de qualité pour garantir des résultats à la hauteur de vos attentes.
En savoir plus
Combien coûte un projet de cuisine avec un architecte à Marseille ?

Combien coûte un projet de cuisine avec un architecte à Marseille ?

Transformez votre cuisine avec AGENCE MRC, expert en rénovation et aménagement intérieur. Nous vous offrons un projet de cuisine sur mesure, grâce à notre spécialisation en architecture d'intérieur. Optimisez votre espace culinaire avec AGENCE MRC, votre architecte d'intérieur à Marseille, pour créer la cuisine de vos rêves. Notre expertise en design et rénovation garantit une réalisation parfaite de votre projet. Faites confiance à AGENCE MRC pour rénover et aménager votre cuisine, avec un architecte d'intérieur dédié à vos besoins et attentes spécifiques.
En savoir plus
Renouvelez votre habitat avec agence MRC : conseils et solutions d'un architecte d'intérieur à Marseille

Conseils pratiques pour transformer et rafraîchir une maison - choisir AGENCE MRC, le bon architecte d'intérieur à Marseille pour vos travaux de rénovation

Renouvelez votre habitat avec agence MRC : conseils et solutions d'un architecte d'intérieur à Marseille
En savoir plus
consultation conseil et aménagement en avec architecte d'intérieur pour une maison à Aix-la-Duranne

Consultation conseil et aménagement en avec architecte d'intérieur pour une maison à Aix-la-Duranne

consultation conseil et aménagement en avec architecte d'intérieur pour une maison à Aix-la-Duranne
En savoir plus
Consultation conseil avec un Architecte paysagiste en visioconférence

Consultation conseil avec un Architecte paysagiste en visioconférence

Consultation conseil avec un Architecte paysagiste en visioconférence pour aménagement extérieur Dans un monde où notre environnement extérieur devient une extension de l’espace de vie, l'importance d'un design paysager réfléchi doit être souligné. L'Agence MRC, en qualité d’architecte paysagiste...
En savoir plus
Consultation visioconférence avec un architecte d'intérieur : rénovation, aménagement, conseil

Consultation visioconférence avec un architecte d'intérieur - rénovation, aménagement, conseil

Consultation visioconférence avec un architecte d'intérieur : rénovation, aménagement, conseilVous envisagez de rénover, décorer ou réaménager un espace de vie ou de travail ? L'Agence MRC offre une solution moderne et accessible avec une consultation par visioconférence avec un architecte d'intér...
En savoir plus
Architecte d'intérieur sur Marseille 12e arrondissement pour intégrer une extension à une maison ancienne avec rénovation totale des volumes

Architecte d'intérieur sur Marseille 12e arrondissement pour une rénovation et extension de maison ancienne et définition solution d'extension pour optimisation travaux

services d'extension de maison clé en main à Marseille avec un architecte d'intérieur spécialisé. Projets sur mesure, aménagements modernes et optimisation d'espace pour un résultat impeccable
En savoir plus
Architecte d’intérieur pour rénovation appartement T3 à Marseille 13009 cuisine vert bois blanc

Architecte d’intérieur pour rénovation appartement T3 à Marseille 13009 alliance d’élégance ancienne et modernité pour travaux énergétiques et aménagements complet de cuisine et salle de bain

Architecte d’intérieur pour rénovation appartement T3 à Marseille 13009 alliance d’élégance ancienne et modernité pour travaux énergétiques et aménagements complet de cuisine et salle de bain
En savoir plus
Architecte d'intérieur : Avant-projet en architecture d'intérieur pour l'aménagement d'une maison à Aix-en-Provence, incluant transformation avec coupes, plans, élévations et esquisses visuelles

Architecte d'intérieur : Relevé de l'existant, plan d'aménagement "Avant-projet" pour une maison à Aix-en-Provence avec propositions d'agencement avec coupes, plans, élévations et esquisses visuelles

Architecte d'intérieur : Relevé de l'existant, plan d'aménagement "Avant-projet" pour une maison à Aix-en-Provence avec propositions d'agencement avec coupes, plans, élévations et esquisses visuelles
En savoir plus
Appartement à Marseille 13007 transformé en deux T2 indépendants par une rénovation d' architecte d'intérieur et décorateur

Appartement à Marseille 13007 relooké et transformé en deux T2 indépendants par architecte d'intérieur préstation aménagement et décorateur

Appartement à Marseille 13007 relooké et transformé en deux T2 indépendants par architecte d'intérieur préstation aménagement et décorateur
En savoir plus
Architecte d'intérieur : création d'une mezzanine pour chambre dans un appartement à Marseille en aménagement pour transformer un appartement T3 en T4 avec terrasses et bassin

Architecte d'intérieur : création d'une mezzanine pour chambre dans un appartement à Marseille en aménagement pour transformer un appartement T3 en T4 avec terrasses et bassin

Architecte d'intérieur : création d'une mezzanine pour chambre dans un appartement à Marseille en aménagement pour transformer un appartement T3 en T4 avec terrasses et bassinEn tant qu' architecte d'intérieur de l'AGENCE MRC, nous avons été sollicités pour transformer un appartement familial situ...
En savoir plus
Inscrivez-vous à la newsletter
Je souhaite recevoir les actualités, conseils et offres exclusives de AGENCE M.R.C, et j’accepte la Politique de confidentialité.