architecte d'intérieur conception, suivi et coordination de travaux autour de moi Aix-En-Provence

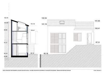
Agence d'architecture d’intérieur pour travaux de rénovation et extension dans une villa de Allauch

Agence d'architecture d’intérieur pour travaux de rénovation et extension dans une villa de Allauch

Agence d'architecture d’intérieur pour travaux de rénovation et extension dans une villa de Allauch Pour vos projets de travaux de rénovation, extensions, surélévations de maison, villa ou même pour des travaux de réhabilitation dans un...
En savoir plus
Réhabilitation et rénovation d’une maison et combles à Aix Les Milles avec Architecte d’intérieur

Réhabilitation et rénovation d’une maison et combles à Couronne Urbaine d’Aix-En-Provence avec Architecte d’intérieur

AGENCE MRC, cabinet d'architecture d'intérieur à Aix-En-Provence, pour tous projet de rénovation de villa et maison sur Aix-En-Provence pouvant intégrer la réhabilitation de combles, voici un projet où le cabinet d’architecte d’intérieur a été consulté proche de l'avenue d'Indochine 13100, entre l...
En savoir plus
Architecte d’intérieur Marseille Saint Barnabé 13012 pour rénovation et travaux

Architecte d’intérieur Marseille Saint Barnabé 13012 pour rénovation et travaux

Architecte 13012 Marseille : L’Agence MRC, architecte d’intérieur à Marseille 13012, vous accompagne dans vos projets de rénovation, d’aménagement intérieur et de décoration sur Saint Barnabé, Saint-Julien, Les Caillols, Les Trois-Lucs et Montolivet. Spécialistes de la maison et de l’appartement sur mesure, nous intervenons pour la rénovation complète ou partielle, l’agencement de cuisines, salles de bain, dressings et suites parentales. Notre équipe gère la conception des plans, le choix des matériaux et la coordination des travaux avec des artisans qualifiés. Nous créons des espaces esthétiques, fonctionnels et adaptés à vos attentes et à votre budget. Notre expertise inclut également l’aménagement extérieur : création de jardins, terrasses et piscines grâce à notre architecte paysagiste. Confier votre projet à un architecte d’intérieur à Marseille 13012, c’est bénéficier d’un accompagnement professionnel, d’une gestion rigoureuse du chantier et de finitions haut de gamme. Nous intervenons à Saint Barnabé et dans tout le 12ᵉ arrondissement.
En savoir plus
Estimez le coût de vos travaux avec un architecte d’intérieur pour un budget réaliste et maîtrisé à Marseille et dans les environs

Estimez le coût de vos travaux avec un architecte d’intérieur pour un budget réaliste et maîtrisé à Marseille et dans les environs

Besoin d’un budget prévisionnel fiable pour votre rénovation ? Contactez un architecte pour une première rencontre sur site à Marseille, Aix-en-Provence ou dans le Pays de l’Étoile.
En savoir plus
Architecte DPLG et Architecte d’intérieur pour rénovation et permis sur Marseille 13012

Architecte DPLG et Architecte d’intérieur pour rénovation et permis sur Marseille 13010

Rénover sa maison sur marseille 13010 avec un architecte DPLG et un Architecte d'intérieur ? Projet d’architecture avec travaux de rénovation d’une maison sur Marseille 13010 quartier de Saint-Loup, réalisé en collaboration entre les cabinets Agence MRC architecte d’intérieur et Paysagiste DPLG e...
En savoir plus
Architecture intérieure : Les avantages de travailler avec un architecte d'intérieur sur Marseille 13007

Architecture intérieure : Les avantages de travailler avec un architecte d'intérieur sur Marseille

Architecture intérieure : Les avantages de travailler avec un architecte d'intérieur sur Marseille sont multiples lorsqu'il s'agit de rénover ou de décorer un intérieur avec un spécialiste de l'architecture. De nombreuses personnes hésitent parfois à faire appel à un architecte d'intérieur en rais...
En savoir plus
Nous écrire
Les champs indiqués par un astérisque (*) sont obligatoires
Inscrivez-vous à la newsletter
Je souhaite recevoir les actualités, conseils et offres exclusives de AGENCE M.R.C, et j’accepte la Politique de confidentialité.