Nos prestations - Page 2

Comment obtenir des devis adaptés et équitables pour vos travaux de rénovation ou un aménagement sur mesure avec l'accompagnement d'un architecte d'intérieur à Marseille ?

Comment obtenir des devis adaptés et équitables pour vos travaux de rénovation ou un aménagement sur mesure avec l'accompagnement d'un architecte d'intérieur à Marseille ?

Comment obtenir des devis adaptés et équitables pour vos travaux de rénovation ou un aménagement sur mesure avec l'accompagnement d'un architecte d'intérieur à Marseille ? #Travaux #Rénovation #Aménagement #Architecte #Marseille
En savoir plus
Architecte d’intérieur à Marseille,  Guide complet pour une rénovation réussie avec suivi des travaux avec les étapes clés. Confiez votre rénovation à un architecte d’intérieur à Marseille : suivi des travaux garanti

Architecte d’intérieur à Marseille : les étapes essentielles pour un projet de rénovation réussi avec suivi des travaux

Architecte d’intérieur à Marseille, Guide complet pour une rénovation réussie avec suivi des travaux avec les étapes clés. Confiez votre rénovation à un architecte d’intérieur à Marseille : suivi des travaux garanti
En savoir plus
Confiez la coordination et le suivi des travaux à un architecte d'intérieur expert pour une rénovation simplifiée et de qualité

Confiez la coordination et le suivi des travaux à un architecte d'intérieur expert pour une rénovation simplifiée et de qualité

Confiez la coordination et le suivi de vos travaux à un architecte d’intérieur expérimenté pour une rénovation simplifiée, fluide et de qualité. Grâce à une expertise professionnelle et une gestion complète de votre projet, bénéficiez d’un accompagnement sur-mesure, depuis la planification des travaux jusqu’à leur réalisation finale. Faites appel à un architecte d’intérieur pour transformer votre espace avec des solutions créatives, fonctionnelles et adaptées à vos besoins, tout en garantissant une exécution soignée et conforme à vos attentes.
En savoir plus
Travaux de rénovation et extension d’une maison à Bouc-Bel-Air par groupement en mission architecte et architecte d’intérieur pour la conception et le permis de construire

Travaux de rénovation et extension d’une maison à Bouc-Bel-Air par groupement en mission architecte et architecte d’intérieur pour la conception et le permis de construire

Travaux de rénovation et extension de maison à Bouc-Bel-Air : notre équipe, composée d'un architecte et d'un architecte d'intérieur, vous accompagne dans toutes les étapes de votre projet. De la conception des plans sur mesure à l'obtention du permis de construire, nous mettons notre expertise au service de votre habitat pour créer un espace unique, fonctionnel et parfaitement adapté à vos besoins. Confiez-nous votre projet de rénovation ou d'agrandissement à Bouc-Bel-Air pour bénéficier d'un service professionnel et personnalisé.
En savoir plus
https://www.mrc-conception.com/contact/

Combien coûte un projet de travaux pour une maison avec un architecte d'intérieur à Marseille ?

Combien coûte un projet de travaux avec un architecte d’intérieur à Marseille ? Le coût dépend de la complexité des travaux, des matériaux choisis et des honoraires de l’architecte. L’Agence MRC, expert en architecture d’intérieur à Marseille, propose des prestations personnalisées pour la rénovation complète de votre maison, incluant la modernisation de cuisines et salles de bain. Nous assurons conception, coordination et suivi de chantier pour garantir des résultats impeccables. Contactez-nous pour une estimation précise et découvrez nos réalisations uniques à Marseille et dans sa région.
En savoir plus
Quels services offre un architecte d'intérieur pour une maison à Marseille ?

Quels services offre un architecte d'intérieur pour une maison à Marseille ?

L'Agence MRC propose des solutions d'exception pour vos projets de rénovation, d'aménagement sur mesure, surélévation ou d'extensions, comme une véranda ou une nouvelle pièce. Notre expertise s'étend aussi bien aux grandes villas qu'aux maisons plus modestes, où chaque espace est optimisé pour maximiser sa fonctionnalité et son charme
En savoir plus
Rénover un appartement dans le 13009 avec architecte d'intérieur et transformation de cuisine, salle de bain et isolation thermique et acoustique

Rénover un appartement dans le 13009 avec architecte d'intérieur et transformation de cuisine, salle de bain et isolation thermique et acoustique

Rénovation immobilière à Marseille : transformez votre appartement dans le 13009 avec l’expertise d'un architecte d’intérieur. Aménagement et agrandissement de la salle de bain, transformation de cuisine avec loggia, isolation thermique et acoustique. Pour une rénovation complète à Marseille, l’Agence MRC vous accompagne de la conception à la réalisation. #Aménagement et #AgrandissementSalleDeBain, #TransformationCuisine #architecte #marseille
En savoir plus
L'expertise d'un architecte d'intérieur à domicile à Marseille pour un accompagnement personnalisé et sur-mesure à votre domicile pour une rénovation et travaux aménagement 

L'expertise d'un architecte d'intérieur à domicile à Marseille pour un accompagnement personnalisé et sur-mesure à votre domicile pour une rénovation et travaux aménagement 

Transformez votre espace grâce à un architecte d’intérieur à domicile à Marseille, qui propose un accompagnement personnalisé et des solutions sur-mesure pour chaque projet de rénovation et d’aménagement. L’AGENCE MRC vous offre une expertise complète, de la conception à la réalisation, adaptée à vos besoins et à la configuration unique de votre espace.
En savoir plus
Mission d'architecture en conception et coordination pour travaux extérieurs et traitement de façade pour maison à aubagne

Mission d'architecture en conception et coordination pour travaux extérieurs et traitement de façade pour maison à Aubagne

mission d'architecture en conception et coordination pour travaux extérieurs et traitement de façade pour maison à Aubagne Services de traitement de façade et d'aménagement extérieur dans la région d'Aubagne avec cabinet d'architecture Prestation traitement des enduits pour murs et murets pour amélioration de l’esthétique et de durabilité Architecte travaux aubagne
En savoir plus
Rénovation de façade pour une maison provençale à aix-en-provence avec un cabinet d'architecture pour déclaration préalable de travaux et consultation d'artisan

Rénovation de façade pour une maison provençale à aix-en-provence avec un cabinet d'architecture pour déclaration préalable de travaux et consultation d'artisan

rénovation de façade pour une maison provençale à aix-en-provence avec un cabinet d'architecture pour déclaration préalable de travaux et consultation d'artisan pour services de traitement de façade à aix-en-provence et accompagnement personnalisé avec cabinet d’architecture pour projet de rénovation de façade et d’aménagement extérieur
En savoir plus
Rénovation de façade à marseille avec un cabinet d'architecture : coordination de ravalement avec enduit, crépi, peinture ou pierre naturelle

Rénovation de façade à marseille avec un cabinet d'architecture : coordination de ravalement avec enduit, crépi, peinture ou pierre naturelle

rénovation de façade à marseille avec un cabinet d'architecture : coordination de ravalement avec enduit, crépi, peinture ou pierre naturelle. Gestion des devis et des coûts de ravalement de façade à marseille. maîtrise d'œuvre et traitement des enduits pour façades. Architecte Marseille
En savoir plus
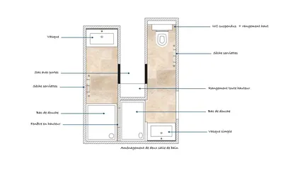
Création de deux salles de bain à partir d’un volume unique avec des travaux d’aménagement par un architecte d’intérieur sur Marseille 13013

Création de deux salles de bain à partir d’un volume unique avec des travaux d’aménagement par un architecte d’intérieur sur Marseille 13013

Vous cherchez à optimiser l'espace de votre maison ? Création de deux salles de bain à partir d’un volume unique avec des travaux d’aménagement réalisés par un architecte d’intérieur sur Marseille 13013 est la solution idéale. Vous vous demandez comment scinder une grande salle de bain en deux espaces distincts tout en respectant les contraintes techniques et esthétiques ? Un architecte spécialisé en salle de bain à Marseille ou à Aix-en-Provence vous accompagne dans chaque étape de votre projet. Avec une expertise reconnue, notre cabinet vous aide à optimiser chaque centimètre carré, garantissant fonctionnalité et style pour vos nouvelles salles de bain.
En savoir plus
Rénovation à marseille avec architecte d’intérieur spécialisé pour rénover et aménager appartement, maison cuisine et salle de bain

Rénovation à marseille avec architecte d’intérieur spécialisé pour rénover et aménager appartement, maison cuisine et salle de bain

architecte rénovation marseille : Pour une rénovation à Marseille, AGENCE MRC est un architecte d’intérieur spécialisé dans la rénovation et l'aménagement d'appartement, de maison, de cuisine, ou de salles de bain.
En savoir plus
Conception de villa contemporaine à marseille en plan d'aménagement par cabinet d'architecture d'intérieur

Conception de villa contemporaine à marseille en plan d'aménagement par cabinet d'architecture d'intérieur

conception de villas contemporaines à marseille avec l'agence mrc l'expertise de l'agence mrc en architecture d'intérieur à marseille des plans architecturaux innovants pour votre villa contemporaine à marseille services d'architecte d'intérieur pour villas contemporaines à marseille conception et réalisation de plans de villas modernes avec l'agence mrc un réseau d'artisans qualifiés pour la construction de villas contemporaines à marseille pourquoi choisir l'agence mrc pour votre projet de villa contemporaine à marseille ? une équipe expérimentée et dédiée pour votre projet de villa à marseille des réalisations de haute qualité dans la cité phocéenne avec l'agence mrc
En savoir plus
Comment les plans d'architecte d'intérieur facilitent-ils l'aménagement et la rénovation de votre maison ?

Les plans d'architecte d'intérieur : la représentation graphique d'un projet de travaux pour aménagement ou rénovation

Les plans d'architecte d'intérieur jouent un rôle crucial dans la représentation graphique de projets de travaux pour aménagement ou rénovation. Ils facilitent la visualisation et la planification des espaces intérieurs, garantissant ainsi une exécution précise et conforme aux attentes des clients. Grâce à un guide complet sur les plans d'architecte d'intérieur, vous pouvez comprendre les étapes clés pour réaliser des projets d'aménagement ou de rénovation réussis. Faire appel à un architecte d'intérieur pour vos plans de rénovation et d'aménagement offre de nombreux avantages. Non seulement vous bénéficiez de l'expertise professionnelle pour transformer vos idées en plans détaillés, mais vous assurez également une meilleure gestion des contraintes techniques et esthétiques de votre projet. Les plans d'architecte d'intérieur incluent divers types de documents tels que les plans de masse, de niveau, d'élévation et de coupe, ainsi que des perspectives 3D et des plans techniques, tous essentiels pour une compréhension complète du projet. Les exemples de plans d'architecte d'intérieur pour des projets d'aménagement et de rénovation réussis démontrent l'importance de ces documents. Ils permettent de visualiser les modifications avant leur mise en œuvre, d'optimiser l'utilisation de l'espace et de prévenir les erreurs coûteuses. En travaillant avec un architecte d'intérieur, vous pouvez personnaliser chaque aspect de votre rénovation, de la cuisine à la salle de bain, en passant par le dressing et l'ensemble de votre intérieur, tout en respectant vos envies, vos besoins et votre budget.
En savoir plus
Rénovation maison et appartement à Marseille : faites appel à un architecte d'intérieur

Consultation d'entreprise pour chantier et devis pour travaux de rénovation à marseille avec architecte d'intérieur

L'Agence MRC, architecte d'intérieur à Marseille et Aix-En-Provence, offre des services sur mesure en conception de projet et suivi de travaux. Pour vos travaux de rénovation, la consultation d'entreprise est essentielle pour une gestion de chantier efficace et des devis travaux précis. Faire appel à un architecte d'intérieur permet de réussir vos projets de rénovation maison ou appartement. En consultant dès les premières étapes, vous obtiendrez des devis travaux détaillés et une coordination optimale avec les entreprises de rénovation locales. Pour une rénovation intérieure sur mesure à Marseille, faites confiance à l'Agence MRC.
En savoir plus
Rénovation et aménagement gros œuvre à Marseille avec cabinet d'architecte d'intérieur

Rénovation et aménagement gros œuvre à Marseille avec cabinet d'architecte d'intérieur

L'AGENCE MRC à Marseille pour rénovation et l'aménagement gros œuvre, offrant des services de conception, d'architecture, et de suivi de réalisation. Elle assure la conformité aux normes et la sécurité grâce à une équipe d'architectes d'intérieur et de partenaires qualifiés. Leurs projets intègrent des matériaux de haute qualité et des techniques avancées pour optimiser l'espace et garantir la durabilité des constructions.
En savoir plus
Quels sont les services offerts par un architecte d'intérieur pour une cuisine à Marseille ?

Quels sont les services offerts par un architecte d'intérieur pour une cuisine à Marseille ?

Conception Personnalisée de Votre Cuisine L'un des principaux services offerts par un architecte d'intérieur est la conception personnalisée. Ils prennent en compte vos goûts, votre style de vie et vos besoins spécifiques pour créer une cuisine qui vous ressemble. Grâce à des outils de modélisation 3D, vous pourrez visualiser votre future cuisine avant même le début des travaux. Optimisation de l'Espace Maximiser l'espace est essentiel dans une cuisine, surtout dans les appartements marseillais où chaque centimètre compte. Un architecte d'intérieur vous aidera à utiliser intelligemment chaque recoin de votre cuisine, en intégrant des solutions de rangement innovantes et ergonomiques. Sélection de Matériaux et Équipements Le choix des matériaux et des équipements est crucial pour la durabilité et l'esthétique de votre cuisine. Un architecte d'intérieur à Marseille saura vous conseiller sur les meilleures options disponibles, en tenant compte de votre budget et de vos préférences. Des plans de travail en marbre aux armoires en bois massif, chaque détail sera soigneusement sélectionné. Coordination des Travaux L'un des avantages de travailler avec un architecte d'intérieur est la coordination complète des travaux. Ils supervisent les artisans, s'assurent que les délais sont respectés et que la qualité du travail est au rendez-vous. Vous n'avez plus à vous soucier des imprévus, l'architecte s'occupe de tout. Conseils en Décoration et Aménagement Enfin, un architecte d'intérieur offre des conseils en décoration pour harmoniser votre cuisine avec le reste de votre intérieur. Couleurs, éclairage, accessoires, tout est pensé pour créer une ambiance agréable et fonctionnelle.
En savoir plus
Quel est le prix d'un projet de cuisine avec un architecte d'intérieur à Marseille

Combien coûte un projet de cuisine avec un architecte d'intérieur à Marseille ?

Le coût d'un projet de cuisine avec un architecte d'intérieur à Marseille varie en fonction de plusieurs facteurs. Ces facteurs incluent la taille de la cuisine, les matériaux choisis, la complexité des travaux et les honoraires de l'architecte d'intérieur. En général, le tarif pour un projet de cuisine peut se situer entre 5 000 et 20 000 euros
En savoir plus
architecte paysagiste à marseille : les avantages d'une piscine de moins de 10 m² pour votre aménagement extérieur avant/après

Architecte Paysagiste - Pourquoi une piscine de moins de 10 m² sur son terrain dans le cadre d'un aménagement extérieur à Marseille ?

Opter pour une piscine de moins de 10 m² à Marseille présente de nombreux avantages. La simplicité administrative permet d'éviter les démarches complexes de permis de construire. Avec des coûts de construction et d'entretien réduits, ces piscines sont idéales pour les petits jardins. Elles se réchauffent rapidement et nécessitent peu de maintenance. De plus, elles offrent un impact écologique réduit, favorisant des solutions durables comme le chauffage solaire et les matériaux écologiques.
En savoir plus
Architecte Paysagiste pour Piscine de Moins de 10 m² à Aix-en-Provence

Architecte Paysagiste pour Piscine de Moins de 10 m² à Aix-en-Provence

Un architecte paysagiste spécialisé dans les piscines de moins de 10 m² à Aix-en-Provence combine expertise et créativité pour transformer de petits espaces en oasis de détente. Travaillant en harmonie avec l'environnement local et les souhaits du client, il conçoit des piscines qui s'intègrent parfaitement dans les jardins provençaux. Chaque projet commence par une analyse minutieuse du terrain, prenant en compte la topographie, l'exposition au soleil, et les caractéristiques naturelles existantes. L'architecte paysagiste sélectionne des matériaux et des végétaux qui reflètent l'authenticité et le charme de la région. Les margelles en pierre locale, les plantes méditerranéennes et les éléments d'eau sont agencés pour créer une esthétique cohérente et apaisante. Des solutions innovantes, comme l'utilisation de technologies éco-responsables
En savoir plus
architecte d'intérieur à marseille : rénovation complète de maisons et appartements avec suivi des travaux

Architecte d'intérieur spécialisé en travaux de rénovation clé en main : Étapes pour rénover une maison marseille

architecte d'intérieur spécialisé en rénovation de maison à marseille : services clé en main pour rénovation énergétique, aménagement haut de gamme, et rénovation de cuisines et salles de bain
En savoir plus
Confortement, consolidation et ouvertures dans murs porteurs sur Marseille : Expertise de l'Agence MRC en architecture d'intérieur pour travaux de rénovation avec gros Œuvre

Confortement, consolidation et ouvertures dans murs porteurs sur Marseille : Expertise de l'Agence MRC en architecture d'intérieur pour travaux de rénovation avec gros Œuvre

Confortement, consolidation et ouvertures dans murs porteurs sur Marseille : Expertise de l'Agence MRC en architecture d'intérieur pour travaux de rénovation avec gros Œuvre
En savoir plus
Évaluer la constructibilité d'un terrain à Marseille : un guide complet par le cabinet d'architecture Agence MRC

Comment savoir si un terrain est constructible à Marseille pour un projet de construction ou d'extension avec cabinet d'architecture

Comment savoir si un terrain est constructible à Marseille pour un projet de construction ou d'extension avec cabinet d'architectureVous êtes sur le point de réaliser l’acquisition d’un terrain pour y construire ou d'un terrain avec une construction existante, et vous souhaitez savoir s'il est pos...
En savoir plus
Salon et séjour d’un appartement haussmannien avec un pilotage projet de réhabilitation et agencement par architecte d’Intérieur sur Marseille 13005

Salon et séjour d’un appartement haussmannien avec un pilotage projet de réhabilitation et agencement par architecte d’intérieur sur Marseille 13005

Salon et séjour d’un appartement haussmannien avec un pilotage projet de réhabilitation et agencement par architecte d’intérieur sur Marseille 13005   Dans le cadre du réaménagement d'un appartement haussmannien à Marseille (13005), notre équipe d’architectes d'intérieur de l'Agence MRC a piloté...
En savoir plus
Inscrivez-vous à la newsletter
Je souhaite recevoir les actualités, conseils et offres exclusives de AGENCE M.R.C, et j’accepte la Politique de confidentialité.